- Referansenummer: 2276
- Type bolig: Finca
- Status: Solgt!
- Område: Crevillente
- By: Crevillente
- Soverom: 6
- Bad: 6
- Størrelse: 282 m²
- Byggeår: 1978
- Hage: Ja
- Terrasse/Balkong : Ja
- Eierform: Eier (selveier)
Fasiliteter
- Airconditioning
- Bod
- Garasje/P-plass
- Hage
- Hvitevarer
- Møblert
- Nyrenovert
- Utsikt
Detaljer
Beliggenhet:
Crevillente er en by og kommune som ligger i Alicante-provinsen og er en del av Comunitat Valenciana.
Det er ca 30 min til Alicante flyplass, ca, 7 minutter til Crevillente og ca 20 min til Elche og Adjub kjøpesenter. Nærmeste strand ligger ca. 30 minutter unna med bil.
Terrenget er tørt, og hoved vegetasjonen består av johannesbrødtrær, mandeltrær, oliventrær og esparto. Crevillente er en stor produsent og eksportør av tepper og granatepler.
Mange av jordbruksområdene, spesielt El Realengo, inneholder ruiner av fengsler og torturhus som ble brukt under Francisco Francos regjeringstid og den spanske borgerkrigen på begynnelsen av 1900-tallet.
Innhold:
Dette er virkelig en nydelig finca i utkanten av Crevillente omgitt av fjellene.
Tomten på 1828 m2 er inngjerdet og har en automatisk port for å kjøre inn bilen. Det er mange hyggelige områder for både soling, sittegrupper og avslapping.
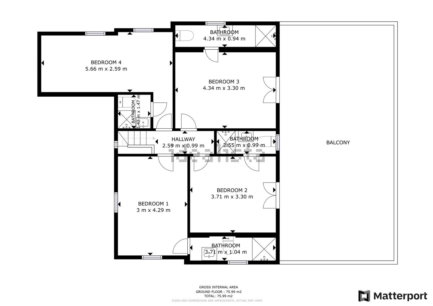
Boligen på 282 m2 som ble renovert i 2020 er meget lys og romslig. Det er 6 soverom med eget bad med dusj. Alle soverom er utstyrt med aircondition.
I første etasje er det 2 soverom, 2 bad, stue med spiseplass og vedovn, et stort fint kjøkken og en herlig stor terrasse.
I andre etasje er det 4 soverom, hvorav 2 har utgang til stor terrasse med fantastisk utsikt.
På tomten er det en garasje som i dag brukes som bod.
Boligen selges møblert, med hvitevarer, aircondition, vannfiltre for det innkommende vannet for hele huset og fibernett.
Pris: 299.000 euro + omkostninger
Fakta:
Areal:
Bolig: 282 m2
Tomt: 1828 m2
Terrasse: 53 m2
Garasje/bod: 16 m2
6 soverom
6 bad
Byggeår: 1978
Antall etasjer: 2
Møblert
Aircondition
Garasje
Eiendomsskatt: 340 euro i året
Energiklasse: E