+34 679 580 166
Calle Caballero de Rodas 65, 03181 Torrevieja
charlotte@boliginvestspania.no

*SOLGT* Rekkehus i en meget populær og attraktiv urbanisasjon, Molino III. Havutsikt. Felles bassengområde.

Plaza la Palma, 36, Torrevieja, Spania

Fasiliteter

  • Airconditioning
  • Bod
  • Fiber
  • Flislagt Hage
  • Hage
  • Havutsikt
  • Hvitevarer
  • Møblert
  • Nyrenovert
  • Pergola
  • takterrasse
  • Turterreng

Detaljer

Beliggenhet:

Eiendommen har en attraktivt beliggenhet i området Aguas Nuevas i Torrevieja. Her har du kort vei inn til sentrum, til flotte tur- og friluftsområder som kan benyttes sommer som vinter og til stranden.

Aguas Nuevas ligger nord i Torrevieja, mellom sentrum og La Mata stranden, og består av rolige villastrøk, supplert med blokkbebyggelse.

Her har du nærhet til “alt”. Her er det kort avstand til stranden, byen, kjøpesentre, butikker, vannland, idrettsanlegg, bowling m.m.

Det finnes også flotte turområder, koselige restauranter og barer, så her er det noe for enhver smak.

Det mange golfbaner innenfor 20 minutter kjørsel. Det tar ca fem minutter å kjøre til La Mata stranden og ca 10 minutter til strandpromenaden i Torrevieja!

Det er god bussforbindelse begge veier.

Innhold:

Velholdt bolig, som er påkostet de senere årene. Bl.a. har stuen og alle soverommene nyere AC, pergola over hele uteplassen med sidevegger, nyere fliser på taket, lagt tak med takvindu over en stor bod på baksiden, og lydisolert en stuevegg mot nabo. Selges med møblert og hvitevarer. Innlagt fiber for TV og internett. Alle møbler er kjøpt i 2012.

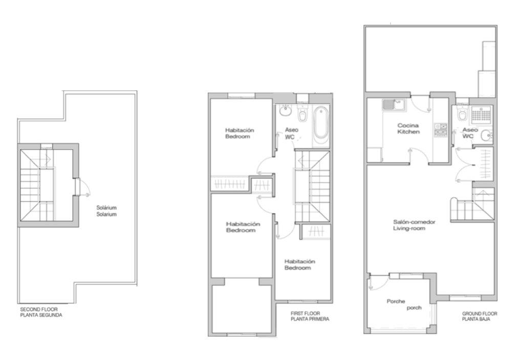
Boligen har et romslig kjøkken med god skap- og benkeplass og oppvaskmaskin, fin stue, 3 soverom og 2 bad. Overbygget altan utenfor stuen foran huset med plass til sittegruppe, stor åpen uteplass med pergola markise som dekker hele uteområdet, med uttrekkbare sidevegger. Terrasse utenfor ett av soverommene i 2. etg. mot sør. Stor takterrasse med utsikt til middelhavet og sentrum av Torrevieja.

Dette er en av de best plasserte boligene i hele urbanisasjonen, sjelden mulighet.

Park foran leiligheten, sørvendt, noe som er spesielt viktig om vinteren, og stort trivelig bassengområde. Rolig område med biltrafikk kun til naboleilighetene.

Gangavstand til mange restauranter, puber, kjøpesenter, og apotek rett rundt hjørnet. Ca 850 meter til nærmeste strand.

Pris: 179.000 euro + omkostninger

Fakta:

Aguas Nuevas

Rekkehus

3 Soverom

2 bad

Møblert

Hvitevarer

Aircondition

Areal: 77 m²

Antall etasjer 2

Havutsikt

Flislagt hage

Bod

Takterrasse

Fellesutgifter 33 euro per måned