+34 679 580 166
Calle Caballero de Rodas 65, 03181 Torrevieja
charlotte@boliginvestspania.no

*SOLGT* Toppleilighet i ettertraktede Urb. Altos de la Bahia XI med takterrasse og bassengutsikt!

Av. de la Mancha, 12M, 03183 Torrevieja, Alicante, Spania

Fasiliteter

  • Airconditioning
  • Bod
  • Felles basseng
  • Garasje/P-plass
  • Havutsikt
  • Hvitevarer
  • Innebygde garderober
  • Møblert
  • takterrasse

Detaljer

Beliggenhet:

Altos de la Bahia ligger rett nord for Torrevieja sentrum og er et veldig populært område.  Mye på grunn av den sentrale beliggenheten og nærheten til havet.

Det er kort vei til både Playa del Los Locos og den kjente La Mata stranden som er en av Costa Blanca’s beste strender.

Dette er et etablert område som lever hele året og det finnes alt du måtte trenge av fasiliteter i gangavstand fra boligen som blant annet butikker, restauranter, barer, banker og apotek.

Det koselige kjøpesenteret Torremarina med Mercadona og mange koselige restauranter og butikker er bare et par minutters gange unna.

Det er god bussforbindelse til både sentrum av Torrevieja og til La Mata og det er en hyggelig spasertur langes promenaden på omkring 45 minutter til Torrevieja sentrum.

Dette er et flott område både for ferieturister og fastboende.

Innhold:

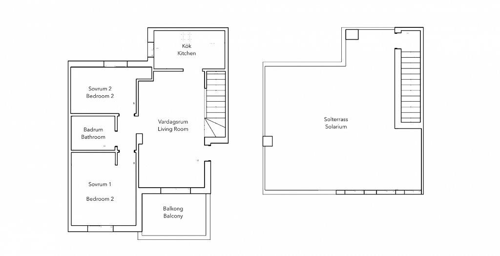
Vi presenterer denne utrolig fine toppleiligheten i ettertraktede Urb. Altos de la Bahia XI med privat takterrasse med havutsikt.

Gå opp en trapp til denne velholdte og flotte toppleiligheten og du ønskes velkommen av en lys stue med god plass til spisebord og sofa. Herfra er det utgang til en fin terrasse som ligger østvendt med morgen- og dagsol. Kjøkkenet ligger i tilknytning til stuen og er utstyrt med vannfilter. De to soverommene har plass til både dobbeltseng eller to enkeltsenger i hvert og er adskilt av det fine badet med dusjkabinett.

Fra stuen går trappen opp til den utrolig koselige og innbydende takterrassen med mye sol, bassengutsikt, havutsikt og med god plass til spiseplass, grill og solsenger.

Boligen er moderne og innflytningsklar, med kanalisert AC i hele boligen og ny varmtvannsbereder.

Denne perlen i Urb. Altos de la Bahia XI selgers fullt møblert og med privat parkeringsplass innenfor det lukkede området.

Det er et flott felles bassengområde i urbanisasjonen.

Pris: 165.000 euro + omkostninger

Fakta:

2 soverom

1 bad

Areal: 55,25 m2

Terrasser: 43 m2

Havutsikt

Parkering

Byggeår: 2011

Møblert

Aircondition

Hvitevarer

Felles basseng

Eiendomsskatt: 223,46 euro i året

Fellesutgifter: 38 euro i måneden

Energiklasse sertifikat: E

Avstander:

Avstand til flyplassen: 42 km

Avstand til stranden: 900 m

Avstand til byen: 1,6 km

Avstand til golf: 12 km

Avstand til butikker: 450 m