+34 679 580 166
Calle Caballero de Rodas 65, 03181 Torrevieja
charlotte@boliginvestspania.no

*SOLGT* TORREVIEJA- Fin sydvendt hjørneleilighet med stor uteplass i Bravomar 7.

C. Maese Pedro, 33d, 03183 Torrevieja, Alicante, Spania

Fasiliteter

  • Airconditioning
  • Bod
  • Felles basseng
  • Flislagt Hage
  • Garasje/P-plass
  • Hvitevarer
  • Innebygde garderober
  • Møblert
  • Stor Terrasse

Detaljer

Beliggenhet:

Eiendommen har en attraktiv beliggenhet i området Aguas Nuevas i Torrevieja. Her har du kort vei inn til sentrum, til flotte tur- og friluftsområder som kan benyttes sommer som vinter og til stranden. Aguas Nuevas ligger nord i Torrevieja, mellom sentrum og La Mata stranden, og består av rolige villastrøk, supplert med blokkbebyggelse.

Her har du nærhet til “alt”. Her er det kort avstand til stranden, byen, kjøpesentre, butikker, vannland, idrettsanlegg, bowling m.m.

Det finnes også flotte turområder, koselige restauranter og barer, så her er det noe for enhver smak.

Det koselige kjøpesenteret Torremarina med Mercadona og mange koselige restauranter og butikker ligger i gangavstand fra komplekset.

Det mange golfbaner innenfor 20 minutter kjørsel. Det tar ca fem minutter å kjøre til La Mata stranden og ca fem minutter til strandpromenaden i Torrevieja! Det er god bussforbindelse begge veier.

Innhold:

Denne fine, delvis renoverte leiligheten, er på 50 m2.

Leiligheten ligger sydøstvendt.

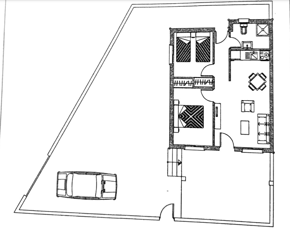
Originalt hadde boligen 2 soverom, men nåværende eier ønsket kun ett soverom, så de har tatt ned veggen mot stuen. Denne er enkel å sette opp igjen, hvis man ønsker 2 soverom. (se plantegninger)

Du kommer inn i en fin stue med åpen løsning mot det renoverte kjøkkenet med spiseplass. Videre er det 1 soverom med garderobeskap og et fint bad. På baksiden er det en patio/vaskerom.

Utenfor er det en stor oppbygd terrasse med markise. På siden er det en stor flislagt hage med carport. Bilen er inkludert i prisen.

Boligen selges møblert, med hvitevarer og aircondition.

Det er et fint fellesområde i urbanisasjonen med basseng.

Pris: 149.000 euro + omkostninger

Fakta:

Areal: 50 m2

Terrasse/ Tomt: 112 m2

1 soverom

1 bad

Terrasse

Sydøstvendt

Felles bassengområde

Møblert

Hvitevarer

Aircondition

Felles bassengområde

Bil

Energisertifikat: E

Eiendomsskatt: ca 200 euro i året

Fellesutgifter: 240 euro i året